Do You Have An Architectural Project We Can Help With?
What We Do
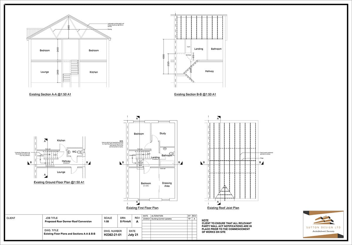
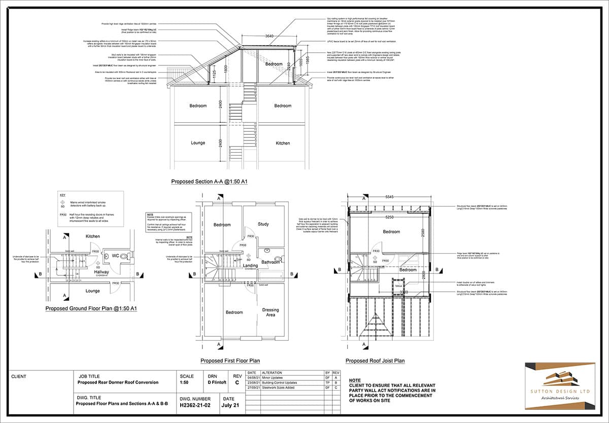
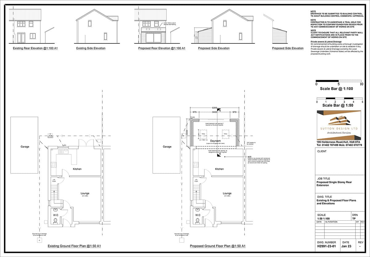
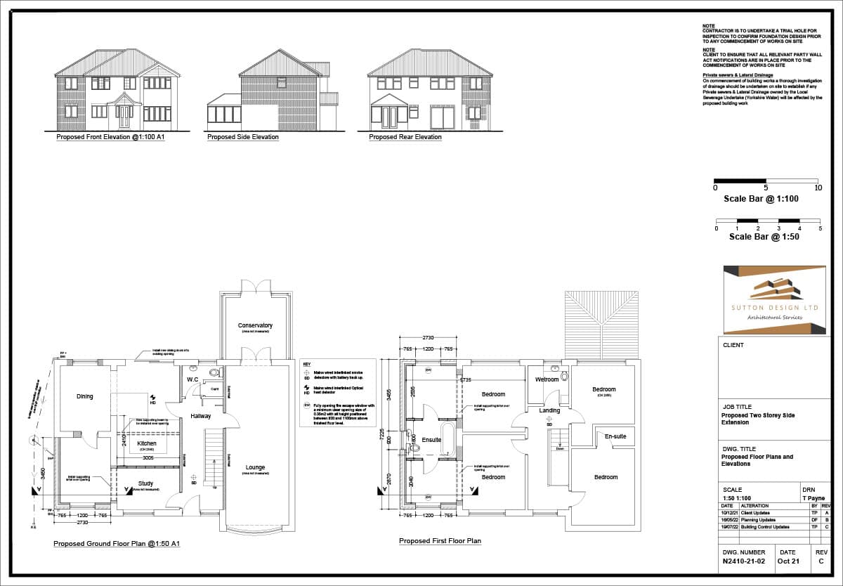
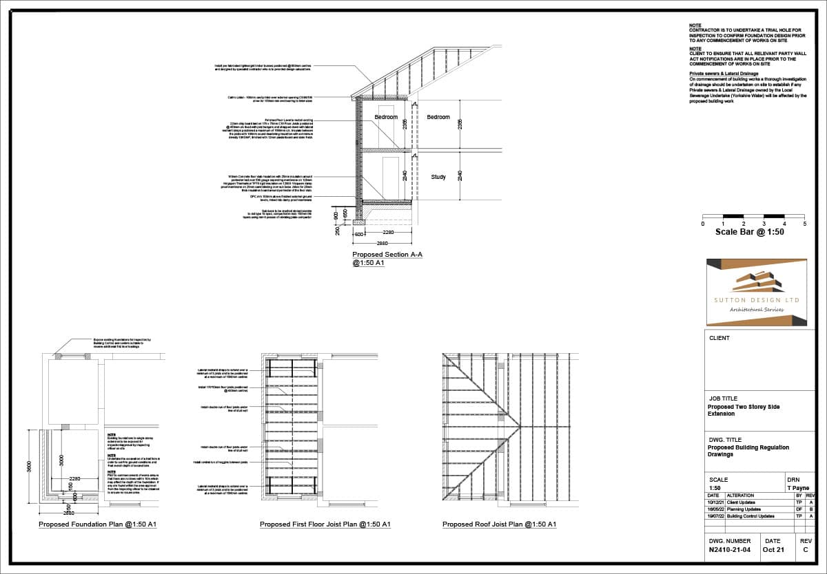
Whether you’re looking to extend your kitchen or gain an extra bedroom in your loft. Our online service ensures a fast and cost effective way to obtaining the necessary plans and approvals. We work with your rough sketch, measurements and ideas to produce the Planning and/or Building Regulations drawings all online.















